物件情報詳細
ホップ・ステップ・ジャンプ
| 家賃 |
|
|---|---|
| 管理費 | なし |
| 間取り | 1LDK |
| 面積 | 56.2㎡ |
| 敷金 | 2ヶ月分 |
| 礼金 | 1ヶ月分 |
| 物件No | 2360 |
アクセス
広島市西区中広
電話でのお問い合わせ (ご案内時間:10:00~18:00)
鉄筋コンクリート造のマンションで、外観やエントランスもシャウエッセン並みにパリッとしてますし、オートロック・宅配BOXと共用設備もバッチリです!
でも、今回私が伝えたいのはそんなところじゃないんです!!
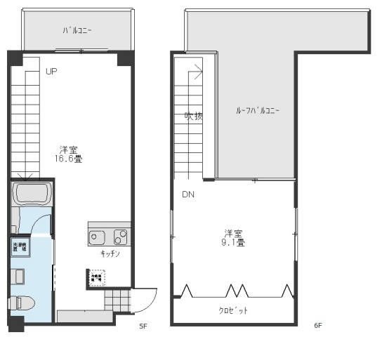
まずは、この間取りを見てください!!
マンションなのに、こんな間取りはぐれメタル並みの希少価値です!!
5階が入口ですが、お部屋の中に階段があって6階にもお部屋があります!!しかも、最上階だから明るくて広いバルコニー付きです!※5階部分にも一般的なレベルのバルコニーがあります。
5階のリビングは一部コンクリート打ちっぱなしで、今流行りのインダストリアルな感じです!
リビングも今流行りの対面スタイルなので、テレビを見ながら料理ができます!
実は・・・以前、私の知り合いが、東京である大物芸能人カップルの部屋をご契約した時のお部屋もこんな間取りと言っていました。※階段は螺旋で、賃料は10倍以上でしたが・・・
どうでしょう!
こんなシャレた、個性的なお部屋に住んでみませんか!!
なんか、いいドレスやいいスーツを着た時のように、あなたを更にブラッシュアップしてくれる、そんなお部屋になると思います!!
明るくオシャレなお部屋で、明るくオシャレに生活したい方 お問合せお待ちしています!
※因みに、事務所使用も相談可能です。
繁忙期まっただなかのこの時期、スピードが本当に大事なんです!お早目のお問合せお待ちしています!!
設備・条件
- バス・トイレ別
- 室内洗濯機
- エアコンあり
- 独立洗面台
- コンロ2口以上
- オートロック
- 駐車場
- ペット相談可
そのほか設備
オートロック・宅配BOX
備考
事務所使用も相談可能
物件概要
| 賃料 | 9万円 | 面積 | 56.2㎡ |
|---|---|---|---|
| 敷金 | 2ヶ月分 | 礼金 | 1ヶ月分 |
| 償却 | - | 管理費 | なし |
| 保証金 | - | 所在地 | 広島市西区中広 |
| 間取り | 1LDK | 所在階 | - |
| 築年 | - | 取引様態 | 媒介 |
| 駐車場 | - | 管理形態 | - |
| 構造 | - |
情報修正日時:2020年08月29日
物件所在地
この物件の担当者
南
MINAMI
電話でのお問い合わせ (ご案内時間:10:00~18:00)
あなたにおすすめの物件
sale
募集中
【弊社専任物件】価格改定 ライオンズ比治山ブライトオアシス 「リ...
皆実高校のお隣に存する2010年築 分譲マンションのご紹介です。 14階 東南角部屋のため、眺望・通風共にオススメです! バルコニーから瀬戸内海を望む、気持ちの良い生活はいかがでしょうか。...
sale
募集中
人気の宇品ベイエリアで広々90㎡越え!!リノベにもおすすめ☆...
リノベプランのご用意もございます☆
sale
募集中
建築家が創った フルリノベーションマンション...
こだわりのアイランドキッチン、浴室にはヒノキを使用。 玄関からクローゼットを通ってLDKに!動線も考え抜かれた特別な一部屋です。
rent
募集終了
人気の横川エリア【2LDK】しかも限定割引キャンペーンあります!...
空室待ちが出るほどの人気物件に空きが出ました!いまなら、ホームページからお問い合わせいただいた方限定で割引キャンペーン中!