物件情報詳細
sale
募集終了
中区 希少な単身売買物件です!
| 価格 |
|
|---|---|
| 管理費 修繕積立金 |
管理費3,800円 修繕積立金5,600円 |
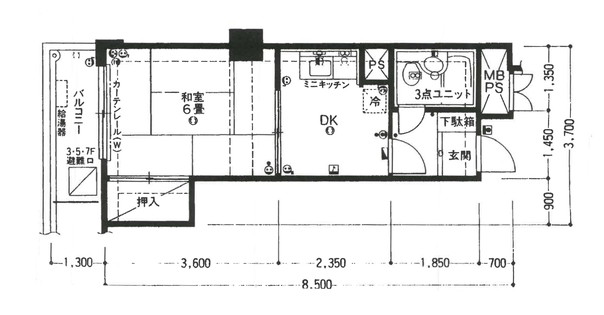
| 間取り | 1DK |
| 面積 | 24.51㎡ |
| 物件No | 7730 |
アクセス
広島電鉄本線 土橋 徒歩 3分
電話でのお問い合わせ (ご案内時間:10:00~18:00)
TEL.082-221-5185
人気の十日市・土橋エリアの区分所有マンションのご紹介です!
人気の十日市・土橋エリアの区分所有マンションのご紹介です! ちょうど前入居者様が出られたため、投資用としてだけではなく、 実際に自らお住いになることも可能です。 マンション自体も適宜 手を入れられており、 共用部もとてもキレイです。 市街地に近いエリアの単身物件は、 投資用としての物件が多く、実際に住める物件というのは希少です。 弊社 売主ですので、仲介手数料も必要ございません。 まずは、ご相談ください。内覧も可能です。 あわせて賃貸でも募集しております(賃料4万円 管理費2000円)
設備・条件
- バス・トイレ別
- 室内洗濯機
- エアコンあり
- 独立洗面台
- コンロ2口以上
- オートロック
- 駐車場
- ペット相談可
物件概要
| 価格 | 480万円 | 面積 | 24.51㎡ |
|---|---|---|---|
| 都市計画 | 市街化区域 | 権利 | 所有権 |
| 償却 | なし | 管理費 | なし |
| 建ぺい率 容積率 |
- | 管理費 修繕積立金 |
管理費3,800円 修繕積立金5,600円 |
| 所在地 | 広島市中区土橋町2番18号 | 構造 | SRC |
| 所在階 | 2階 | 築年 | 1983年10月 |
| 取引様態 | 売主 | 駐車場 | - |
| 間取り | 1DK | 用途地域 | 商業地域 |
情報修正日時:2020年12月21日
物件所在地
電話でのお問い合わせ (ご案内時間:10:00~18:00)
TEL.082-221-5185
あなたにおすすめの物件
sale
募集中
人気の宇品ベイエリアで広々99㎡越え!!リノベにもおすすめ☆...
4180万円
広島市南区宇品西2丁目15-40/
4LDK /
99.95㎡
リノベプランのご用意もございます☆ *トップ画像はリノベイメージです
sale
募集終了
建築家が創った フルリノベーションマンション...
3680万円
広島市中区東平塚町1-9/
1LDK /
92.15㎡
こだわりのアイランドキッチン、浴室にはヒノキを使用。 玄関からクローゼットを通ってLDKに!動線も考え抜かれた特別な一部屋です。
rent
募集終了
広島駅まで徒歩9分!天井高3メートルの分譲賃貸のお部屋!...
8.2万円
敷金:
2ヶ月分
礼金:
1ヶ月分
広島市東区光町1丁目6-11/
2LDK /
57.04㎡
広島駅まで徒歩9分!南面リビングは天井高3メートルに加えて、前面ガラス窓仕様で採光・通風共にgood!! メイン通りから1本入っているので、閑静な環境です!
sale
募集終了
【弊社専任物件】価格改定 ライオンズ比治山ブライトオアシス 「リ...
5480万円
広島市南区出汐2丁目4-80/
4LDK /
90.10㎡
皆実高校のお隣に存する2010年築 分譲マンションのご紹介です。 14階 東南角部屋のため、眺望・通風共にオススメです! バルコニーから瀬戸内海を望む、気持ちの良い生活はいかがでしょうか。...